Drill Window Falling Object Protection

Role: Undergraduate Design & Maintenance Engineer

Company: Glencore — Rolleston Open Cut Coal Mine

Tools: Fusion 360, Ansys FEA, SAP

Skills Used: Fusion 360, Ansys FEA, AS 3449 / ISO 3449:2005, Finite Element Analysis, Steel Fabrication Design, CAD Modelling, Engineering Drawing, Design for Manufacture, Structural Analysis, Technical Documentation

The Problem

Rotary blast-hole drill rigs DR05 and DR06 at Rolleston Open Cut operated with front window guards that severely restricted the operator's forward visibility. The existing guards used a tightly spaced bar arrangement that, while protective, created significant blind spots during drilling operations. Operators were forced to work around obstructed sightlines, increasing fatigue and reducing situational awareness in an environment where falling rocks and debris are a constant hazard.

Design Approach

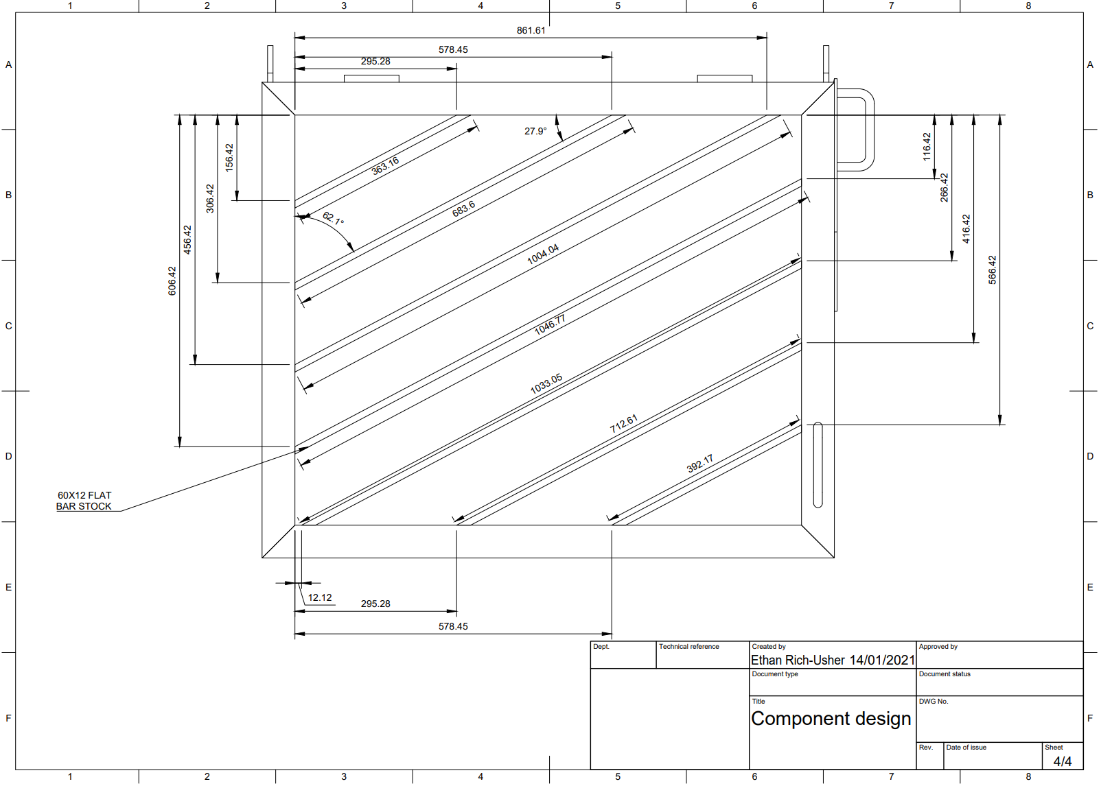
The guard was designed as a hinged steel frame fabricated from 60x60x4 mm square hollow section, with angled 60x12 mm flat bar stock forming the protective grate. The key design decision was the bar orientation — by angling the flat bars at approximately 28 degrees rather than running them vertically, the guard opens up significantly more of the operator's forward field of view while still providing the required deflection area to meet the AS 3449 impact criteria.

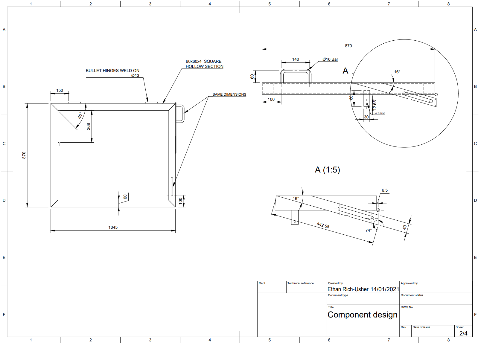
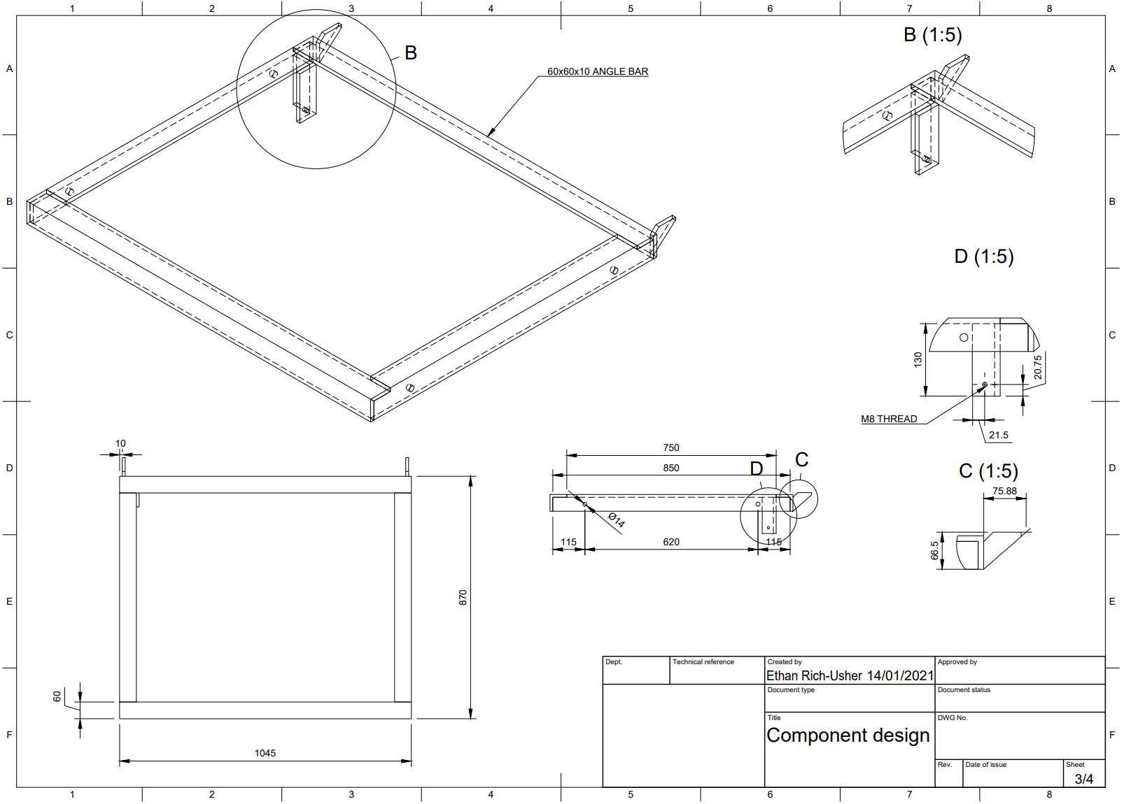
The frame mounts to a separate 60x60x10 mm angle-bar surround via weld-on bullet hinges, allowing the entire guard to swing open for window cleaning and maintenance access. Handles on the guard frame give the operator a solid grip point, and M8 threaded fasteners secure the guard in the closed position.

Operator’s Perspective

Project Scope

I was tasked with redesigning the falling object protection structure (FOPS) for the drill cabin front window. The new guard needed to meet several competing requirements: full compliance with AS 3449 (the Australian Standard for falling object protective structures on mobile machinery), meaningfully improved forward visibility for the operator, reduced pinch points around the guard's moving parts, high durability under continuous mine-site conditions, and practical ease of use so operators could open and secure the guard without difficulty.

Analysis and Validation

AS 3449 requires a FOPS to withstand the impact of a 45 kg steel object striking at 7.5 m/s, equating to 1,365 joules of impact energy, with meaningful resistance to brittle fracture. I built a full CAD model in Fusion 360 and ran finite element analysis to verify the design could absorb the required impact loading. The FEA simulations modelled both a 7.5 m/s standard impact case and a 15 m/s extreme case, confirming the guard's structural adequacy under both scenarios.

Outcome

I delivered a complete engineering drawing package and validated CAD model, which was then handed over to an RPEQ-certified engineering contractor for final review, fabrication, certification, and installation on the drill rigs. The redesigned guard addressed all of the original brief requirements — bringing the protection up to standard while giving the operators a noticeably clearer view of their working area.